這一篇公眾號開始,將圍繞污水廠的工程圖紙,逐一構筑物的進行運營角度的閱讀設計圖紙。對于一座污水廠來說,污水從進廠到最終流出污水廠,需要經過多道處理工序,這些工序一步步的將污水凈化成潔凈的水排出污水廠外。因此在污水廠中每一道工序都有其相應的工藝運行的內容,這其實也是污水廠各個工序的構筑物設計的要點,而運行人員需要通過閱讀工程圖紙來了解污水廠這些不同工序的構筑物的設計理念,從而更好的管理污水廠,或者從設計中了解到原有的不足,通過現場的調控來修正這些不足。
污水流入到污水廠以后首先進入的是預處理段,預處理段主要有粗格柵,污水提升泵房,細格柵,沉砂池等組成,下面來看看一些污水廠的設計圖紙案例:


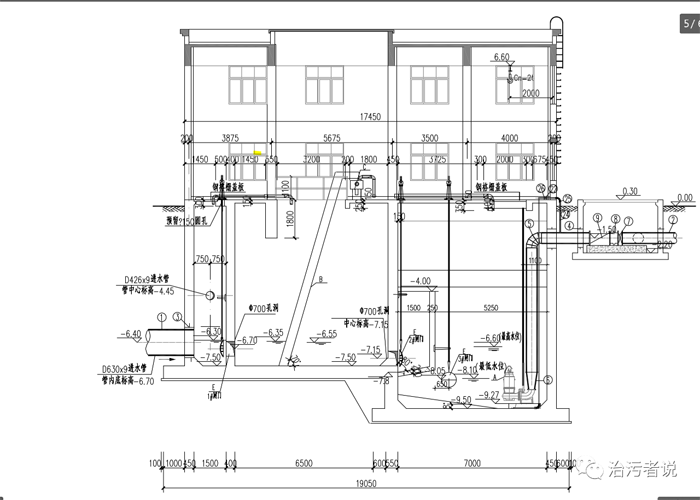
這些都是一些污水廠粗格柵位置的設計圖紙。當運營人員拿到這些圖紙時候,需要明確的就是從這些圖紙中最終要確定什么,或者說從圖紙中我們能得到什么樣的運行指導,這才是運營人員需要的讀圖目的。
第一,布局。通過平面圖,有些甚至是上下平面圖,污水廠的運行人員可以確定出污水進廠前后的一個基本的流向。污水從廠外流進來,一般通過重力自流,到了污水廠以后的管道埋深都非常的深,在污水廠的地表上,運行起來后,是無法看到這趟進水管路的,所以要通過粗格柵構筑物的圖紙來確定進水管路的位置。進水管的進入到粗格柵前位置一般是集水井,如果有溢流管還可以在圖紙上找到溢流管的位置和流向,同時還有廠區的回流的污水管的位置和進入集水池的流向。集水井到粗格柵內部,一般有閥門來控制,通過圖紙可以看到閥門的位置和控制的污水的流向。進入到污水廠內之后,各個主要的處理設備都需要具有備用,因此像粗格柵這樣的污水廠咽喉部位的設備,一定是有備用的,所以粗格柵一定是雙個通道的,這樣可以保證粗格柵出現故障后,可以及時切換,保障整個污水廠的運行。對應的集水井進入到粗格柵也就有兩個閥門進行控制。關于這個閥門在實際運行中,很多污水廠都有很大的煩惱就是這個閥門不能經常啟閉,由于進水中的雜物較多,大量的雜物進入到集水井內,很容易堵塞在進水閥門的軌道內,并且進水集水井都很深,閥門電動裝置在地面上,因此電動控制絲母絲桿和底下的閥門之間的連接桿也很長,這樣經常的運行中就很容易導致連接桿折彎或者斷裂。因此實際運行中需要對這個部位的閥門進行經常性的保養和維護,以保證其正常運行。粗格柵間內部主要是粗格柵的布局,提升泵的位置布局,如果粗細格柵合建,也要注意細格柵的布局等。

關注這些設備的布局主要是為了在運行中如何更好的進行管理,在預處理段中主要進行的是懸浮雜質的去除和污水的進水提升。合理的流向布局往往會使雜物能得到順暢的去除,污水得到有效的提升。污水中含有懸浮雜質同時也含有大量的固體易沉淀雜質,特別是雨污合流的管道體制下,如果在預處理段的粗格柵提升泵停留時間過長,很容易造成固體雜質沉淀到緩流區域,逐步堆積到長期停用的污水提升泵處,導致污水提升泵最終被泥沙淤積,無法啟動。在有些污水廠粗格柵和提升泵的距離較遠,造成泥沙經常淤積,除了在緩流區增加攪拌器以外,還要注意提升泵的輪換運行,保證每臺提升泵吸水口下方不會淤積大量的泥沙。

第二、高程。通過圖紙了解預處理段的設備布局和位置之后,還有一項最重要的需要通過圖紙得到的內容,那就是高程。污水廠的預處理段是將污水從低處提升到高處的工序。因此各個環節的水位線位置是預處理段需要重點注意的內容。比如進水管內的水位線標高,溢流管的水位線標高,廠區污水管的水位線標高,粗格柵的工作水位正常水位線標高,泵房的最高水位和最低水位標高,水泵出口的水位標高等。這是在污水廠內標高變化最多的一處構筑物,需要對這里的高程逐一核對,確定各個環節的運行控制內容。
比如粗格柵的運行液位,設計上一般都在粗格柵的進水柵條處,也就是很低的液位控制點,粗格柵有很大一部分都是不銹鋼板,只有水下部分是柵條,因此過柵的液位就要控制在柵條位置處,但是在運行中,有些污水廠把液位控制的比較高,由于水中的懸浮雜質很多都比水的密度小,大部分會漂浮在水體表面,這樣就有很多雜質在高液位的表面。粗格柵由設備廠家制造,粗格柵的安裝位置的土建施工一般會比粗格柵略大一些,這樣方便粗格柵的安裝,但是兩側就會留出一些空隙,這些空隙一般用橡膠墊堵住,運行中會有破損的情況出現,高液位表面的浮渣就會通過破損位置進入到后續構筑物內。因此通過圖紙來確定和了解粗格柵工作液位在運行管理中是很有指導意義的。當然這個液位在實際的工作中也比較難控制,特別是雨污合流的污水廠,往往受到雨水的瞬時的大量進入,提升泵無法及時提升,導致液位很難控制在工作液位。這種現象是整個污水體系的問題,需要全面的整改,污水廠更需要針對雨季的工況制定合理的運行控制措施,避免雨季對設備和工藝的沖擊。

除了粗格柵的液位還有就是提升泵的運行液位,最低液位,最高液位等等,比如最低液位是保證潛水泵不至于把泵體露出液面,無法冷卻而造成水泵燒毀的情況。而高液位會造成水泵的凈揚程縮小,水泵的工況就從設計的能效曲線偏離到低效區,通過流量來換取了縮小的揚程的能量消耗,造成了水泵提升量的增加。這樣在實際運行中就會出現瞬時流量出現超過設計峰值的工況出現,因此在實際運行中要對泵房水位的控制點通過設計圖紙來確定下來,這樣在后續的自控程序的設計中就能給出合理的數值,來確定實際的運行工況。
這些內容都僅僅只是圖紙中反映出來的很少的一部分內容,把一份圖紙中反映出來的工藝內容完全的解讀出來,需要深入仔細的審閱圖紙,從圖紙中獲取相關的運行控制信息,從而指導污水廠的日常的工藝生產,可以避免很多時候污水廠的生產控制沒有控制基準的困境。